דה לוקס TRUCK: מעצבים חלום של מסעדה
כשהבעלים של מסעדת דה לוקס, דיינר אמריקאי, רצו להקים ברביקיו נייד על גלגלים, הם נתקלו בבעיות בירוקרטיות. בסטודיו OPA באו לעזרתם והכשירו רכב "גרומן" כמטבח, סביבו עיצבו דיינר אמריקאי צבעוני ומקסים. בואו לסיור

החלום: משאית אוכל שמוכרת גריל אמריקאי
טרנד משאיות האוכל שפושט ברחבי העולם ומגיע לישראל בימים אלו משפיע, מתברר, גם על בעלי עסקים בתחום הזמן. הבעלים של דה לוקס בשוק הפשפשים חלמו להקים ברביקיו נייד על גלגלים ופנו לסטודיו OPA שיגשים את החלום שלהם. אבל בין חלום למציאות בירוקרטית ישראלית המרחק גדול. בעיות רישוי מעיקות לא אפשרו לחולמים להקים משאית אוכל אמיתית והעמידו את המעצבים בפני אתגר, אלו לקחו אותו בשתי ידיים.

גרונמן
כדי להשתמש בקונספט של מטבח נייד, מצאו המעצבים רכב "גרונמן". את הגרונמן פירקו והרכיבו מחדש כדי להכשירו כמטבח.
סגנון עיצוב
מאחר שמקורו של הברביקיו נמצא בדרום ארצות הברית, השתמשו המעצבים באלמנטים מקומיים, ובסגנון ה NATIV. החלל עוצב בסגנון backyard garage עשיר בצבעוניות וניתן למצוא בו אלמנטים מתועשים כמו ברזל, עץ ונירוסטה לצד טקסטורה צבעונית אשר בנויה מאריחי קרמיקה.

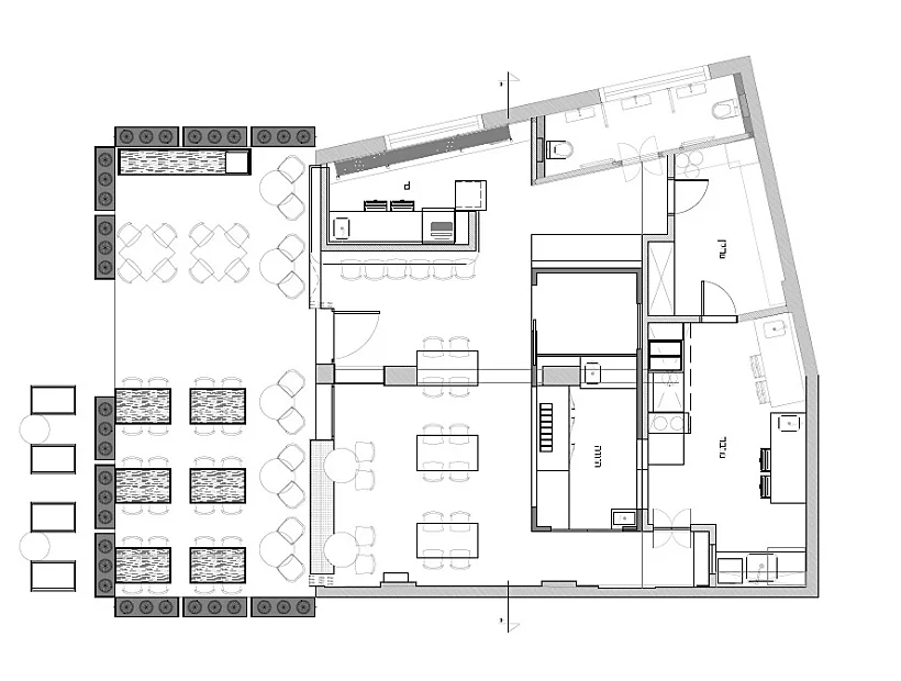
תוכנית עיצוב

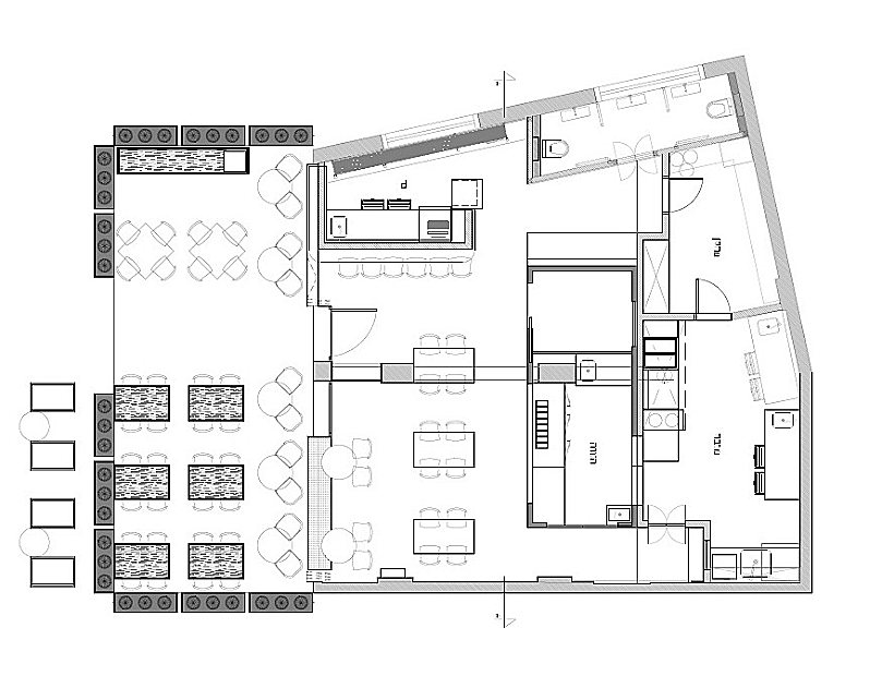
תוכנית עם צבע

סביבת אכילה והמטבח מהצד

מבט מבחוץ

Truck De Luxe טראק דה לוקס, מסעדת ברביקיו, דיינר וגריל בר
רחוב בן עמי 13 (כיכר דיזנגוף) תל אביב
עיצוב: סטודיו OPA



